Buy into the Newlands Lifestyle and Walk Everywhere!

R9,450,000
Property Details

VIEW BY APPOINTMENT ONLY - PLEASE CONTACT THE AGENT FOR ACCESS!

Located opposite the SACS bottom entrance within walking distance to the trendy Newlands Village hub, Dean Street Arcade and Westerford High school, with a quick and easy car trip to UCT and straight into Town. this family home is filled with natural north facing light and is ready for you to bring Granny along and elevate this blank canvas!

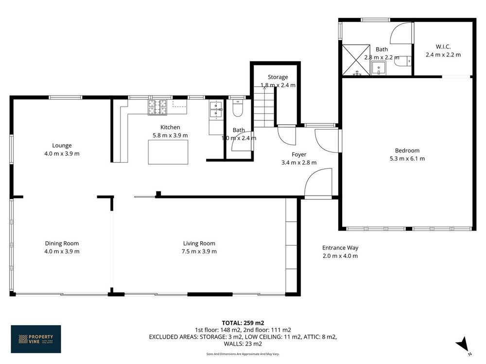
Offering 5 bedrooms/ 3.5 bathrooms in total in the following layout:

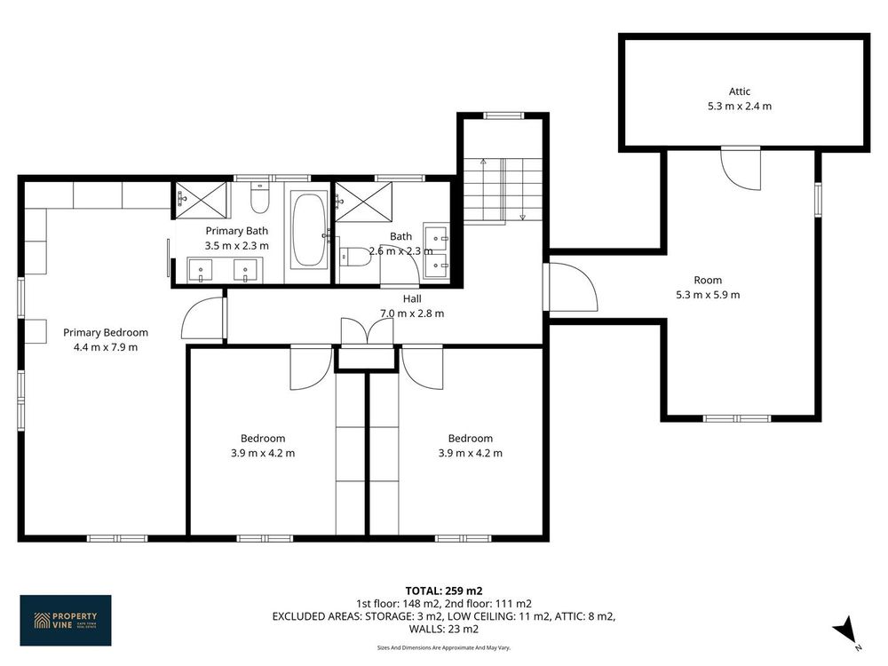
- 4 bedrooms upstairs: Large main with newly fitted dressing room area and modernised full en-suite with double vanity;

- 2 upstairs bedrooms - the mirror image of one another with new cabinetry

- 4th upstairs bedroom with provision for an en-suite addition in the roof space

- Fully renovated family bathroom (shower/ basin/ toilet)

- Downstairs: A converted double garage into a separate entrance large studio guest bedroom with American shutters and a renovated en-suite (shower/ basin/ toilet)

- Renovated guest cloakroom off the entrance hall

Living rooms, all recently renovated with modern tiled flooring throughout, consist of a contemporary open plan layout between the kitchen, dining room and lounge all opening out through aluminium sliding doors to the paved garden, patio and pool area with a gas fireplace – a prerequisite in Cape Town. The kitchen offers granite counter tops with a centre island, double sink, newly installed gas hob and electric oven with plumbing for 1 appliance. The laundry room is located off the guest suite with space for 2 appliances.

Exterior:

-Secure parking for 2 cars

-Newly relined pool with blue mosaics

-Alarm, beams, intercom, automatic driveway gate

-Private outdoor entertainment space on the paved patio

-Built-in braai and firepit

A home offering accommodation for the larger family, PLUS the extended family in a prime location. The ideal place for your family to reside and invest.

Property Features
Property Type
House
Bedrooms
5
Bathrooms
3.5
Open Parking
2
Floor Size
259m²
Land Size
487m²
Living Area
2
Costs and Terms
Rates & Taxes
±R4,620
Additional Information
Kitchen
Granite counter tops with a centre island, double sink, newly installed gas hob, electric oven, plumbing for 1 appliance.
Security
Alarm, beams, intercom, automatic driveway gate
Make an enquiry
Interested in this property? Please fill in your details below, and we will contact you as soon as possible.
By clicking on "submit" you agree to our privacy policy.
Property Alerts
Receive email alerts for properties matching your criteria.